Наш ассортимент стальных строительных материалов разработан для обеспечения прочности, долговечности и универсальности для широкого спектра строительных применений. Независимо от того, используются ли они в каркасных конструкциях, кровле или облицовке, наши стальные изделия разработаны для соответствия и превышения отраслевых стандартов, гарантируя надежность и долговечность ваших строительных проектов.
Оцинкованная стальная балка С-образного сечения
Введение: Стальные прогоны используются для структурной поддержки в зданиях со стальными конструкциями. Чаще всего прогоны являются основными компонентами конструкций крыши. Прогоны крыши поддерживаются либо стропилами, либо стенами здания, а настил крыши укладывается поверх прогонов.
Product Name | High quality structural galvanized c purlin |
Capacity | 1000 tons/month |
Certificate | ISO9001 |
Material | Q235/Q235B/Q345/Q355B |
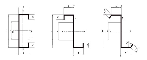
Type | C purlin |
Surface treatment | polish;painted;galvanzied;punched |
MOQ | Min trial order 25 ton |
Payment | 30%T/T ,70% balance by L/C |
Specifications | H= 80mm-350mm |
B= 40mm-80mm | |
C= 15mm-25mm | |
T= 1.5mm-3.5mm | |
Length=1-12 meters |
Подробные изображения высококачественной оцинкованной структурной С-образной обрешетки.
![]()
![]()
![]()
Ключевые категории:
Конструкционная сталь:
Двутавровые балки и колонны: высокопрочные конструктивные элементы для каркасных и опорных конструкций.
Стальные балки и фермы: спроектированы для обеспечения несущей способности в системах перекрытий и крыш.
Стальные пластины: прочные пластины для структурных соединений и армирования.
![]()
Системы стальных каркасов:
Стальные стойки и направляющие холодной штамповки: легкие и универсальные каркасные элементы для стен, перегородок и потолков.
Стальные С-образные швеллеры: используются для каркаса и поддержки различных строительных элементов.
Стальные швеллеры и уголки: обеспечивают структурную поддержку и жесткость в различных областях применения.
![]()
Кровельные и облицовочные материалы:
Кровельные листы из гофрированной стали: прочный и устойчивый к атмосферным воздействиям кровельный материал, подходящий для различных архитектурных стилей.
Стальные стеновые панели: универсальные решения для облицовки наружных стен, улучшающие эстетику и обеспечивающие защиту от атмосферных воздействий.
Металлическая фальцевая кровля: современный и элегантный вариант кровли, известный своей долговечностью и неприхотливостью в обслуживании.
![]()
Крепежи и соединители:
Болты и гайки: высокопрочные крепежные элементы для надежных соединений в стальных конструкциях.
Анкеры и кронштейны: основные компоненты для крепления и соединения элементов конструкции.
Сварочные материалы: Сварочные прутки и проволока, предназначенные для оптимальной сварки стали.
![]()
Стальная изоляционная опора:
Металлические изоляционные подвесы: используются для крепления изоляционного материала к стальным конструкциям, предотвращая потери тепла и повышая энергоэффективность.
Стальные арматурные стержни (арматура):
Деформированная арматура: Армирование бетонных конструкций, повышение прочности на растяжение и структурной целостности.
Аксессуары:
· Стальные Z-образные прогоны и швеллеры: вторичные элементы каркаса, обеспечивающие дополнительную поддержку и устойчивость.
· Стальные стойки для внутренних перегородок: легкие стойки для внутренних стен и перегородок.
· Стальные винты и заклепки: необходимы для фиксации стальных компонентов во время строительства.
![]()
Преимущества
1. Экологичность: все материалы стального склада изготовлены из стали, которую можно использовать многократно.
2. Хороший внешний вид: склад с цветными стальными листовыми стеновыми панелями и кровельными панелями красив и аккуратен.
3. Качество: склады из стальной конструкции с каркасом из стальной конструкции и цветными стальными листовыми панелями очень прочные.
4. Хорошая дренажная система с холодногнутым стальным листовым желобом и водосточной трубой из ПВХ
. 5. Соединение: все стальные материалы соединены высокопрочными болтами, срезными болтами, кронштейнами и т. д., их легко устанавливать и демонтировать.
6. Короткие сроки поставки. Все материалы загружаются в контейнеры, отправляются за границу.
7. Короткие сроки производства: склад с гибкой конструкцией был разделен на ряд частей стальной конструкции, которые изготавливаются опытными рабочими на передовых машинах.
8. Установка: при необходимости наши инженеры предоставят техническое руководство на месте.
Проверка и контроль качества
![]()