Сокращение расходов на строительство, экономия времени на монтаж, чтобы семьи с низким доходом могли иметь качественные, теплые дома, — это цель и миссия, которую преследует Wantai. Благодаря сотрудничеству с правительством или строителями/инвесторами, Wantai успешно разработала систему гражданского жилищного строительства. Мы продолжим совершенствовать систему и делать ее более совершенной.
Система
Система стен: бетонный блок + цемент + штукатурка + скребковая шпатлевка + латексная краска;
Система кровли: синтетическая смоляная плитка + слой изоляции из стекловолокна + цветная стальная пластина + потолок из гипсокартона
Основной каркас: колонна + балка + прогон, все из квадратной трубы.
![]()
![]()
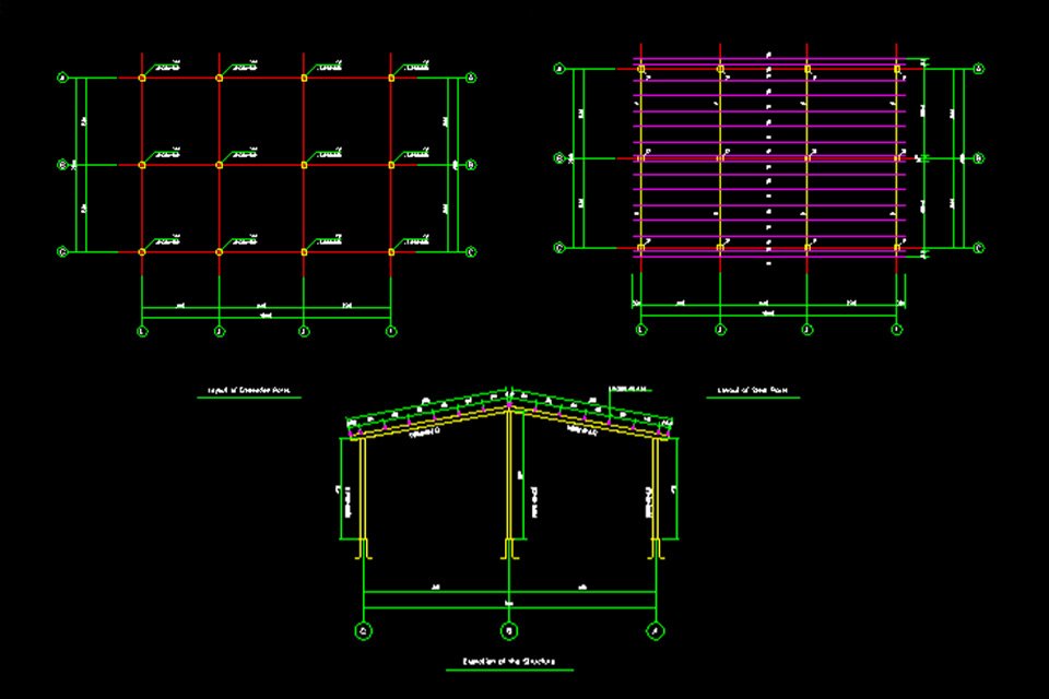
Низкая стоимость строительства Проектирование стальных металлических конструкций Планы зданий Цена Сборный склад
A: Компоненты оцинкованной легкой стальной конструкции
1) Стеновая панель: сэндвич-панель с цветной сталью с двух сторон и заполнением пенополистирольным пенополистиролом ширина: 1200 мм 1k=1200
2) Колонна: сталь в стиле C, форма H
3) Балка пола: сталь в стиле C, 200*40*2,0 мм
4) Пол: легкая магниевая плита (наш патент)
5) Лестница: металл
6) Стропильная ферма: угловая сталь
7) Металлическая трубка для прогонки
8) Кровельная панель: гофрированная сэндвич-панель с цветной сталью с двух сторон
9) Дверь: алюминиевая рама с панелью, такой же, как стена, с замком
Примечание: этот список приведен для справки, но элементы могут отличаться.
Технический индекс
Сейсмостойкость: интенсивность деления 8
Давление ветра: <31 м/с около 10 баллов
Снеговая нагрузка на кровлю; <80 кг/м2
Жизненная нагрузка на кровлю: 50 кг/м2
1. Экономичность: быстрая установка и экономия затрат на строительство
2. Срок поставки очень короткий, установка очень простая
3. Надежное качество: в основном производится на заводе и контролируется качество
4. Большое пространство: максимальный пролет сборной стальной конструкции может достигать 80 метров
5. Антисейсмичность: потому что вес небольшой
6. Гибкость: можно демонтировать и увеличивать
7. Красивый внешний вид: можно использовать разные цвета
8. Длительный срок службы: можно использовать более 30 лет
B: Преимущества легкой стальной конструкции
1) Экономичность: быстрая установка и экономия затрат на строительство
2) Надежное качество: в основном производится на заводе и контролируется качество
3) Большое пространство: максимальный пролет сборной стальной конструкции может достигать 80 метров
4) Антисейсмичность: потому что вес небольшой
5) Красивый внешний вид: можно использовать разные цвета
6) Длительный срок службы: может использоваться более 50 лет
C: Если вам нужно, чтобы мы спроектировали для вас легкое стальное здание, нам нужно знать следующее:
1. дождевая нагрузка
2. временная нагрузка
3. снеговая нагрузка
4. ветровая нагрузка
5. используется ли кран 6. длина, ширина, высота
D: Особенности
Привлекательный дизайн - весь дом выглядит красиво и элегантно. Внутренние, внешние стены и обшивка крыши выполнены из цветной стальной сэндвич-панели, материал - пенополистирол.
Легкий вес и удобство в транспортировке.
Легко собирать и разбирать: дом можно перестраивать десятки раз. Для сборки требуются только простые инструменты: дюбели и винты.
Прочная конструкция - дом использует стальную каркасную конструкцию и сэндвич-панели. Наши дома полностью водонепроницаемы.
Дом можно изготовить по индивидуальному заказу. Крыша, стены, двери, окна могут быть выбраны заказчиком.
Долговечность — все детали стального каркаса обработаны антикоррозийным покрытием и могут служить до 20 лет.